Skip to content
Visit the Expo
| Mecc Maastricht | 10:00 - 17:00
More information

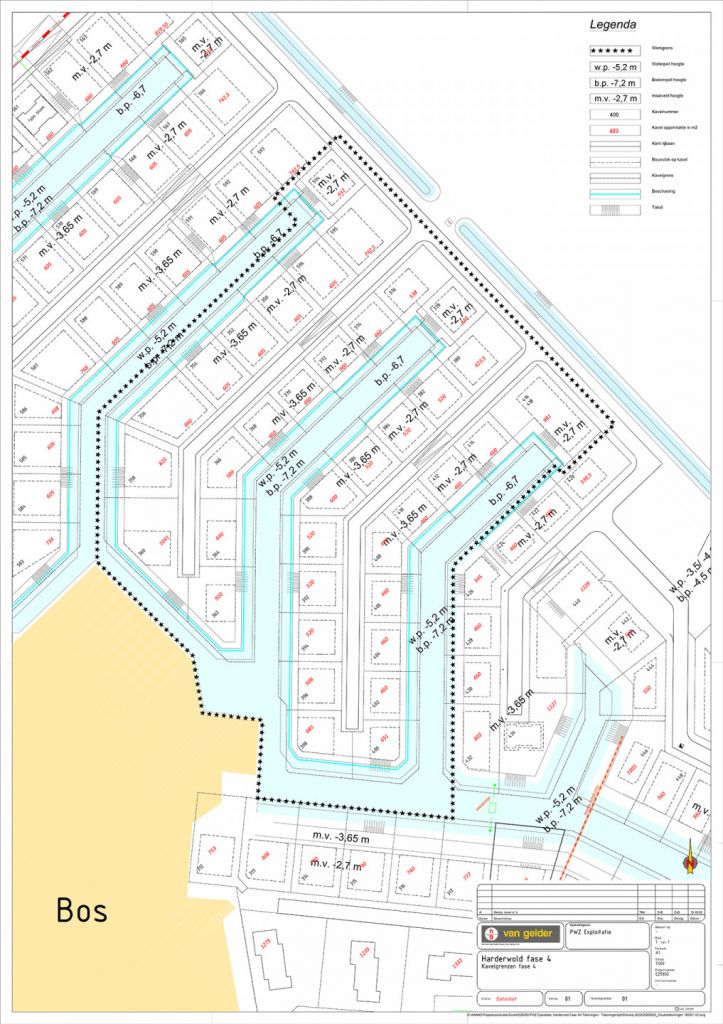
Harderwold Villa Resort

Flevoland, The Netherlands
€360,142 - €503,844
Map
  • Luxury design villas (various types) on open water
  • A place where you can relax and find yourself in freedom and nature
  • Prachtig gelegen aan het water, in directe verbinding met het Veluwemeer

Description

Welcome to Harderwold Villa Resort. Here you will find luxury recreation villas with plenty of peace and quiet and a private jetty. You can sail onto the Veluwemeer from your own home! The park offers a number of facilities, such as go-kart rental and a swimming beach with a playground. Renting bicycles and boats is possible via an external party. Adjacent to the park are an 18-hole golf course with A status and a 9-hole par 3 recreational golf course. This golf course also has a cosy restaurant with a lovely terrace.

The resort is located in a forest and water-rich environment and is surrounded by nature. Think of the Veluwe Lake, forest Horsterwold and the Harderbos. Also beautiful are the nearby Oostvaardersplassen, as well as the Markermeer and the IJsselmeer. A day out? Go to the Dolfinarium, Walibi World or the historic towns of Harderwijk and Elburg. At Harderwold Villa Resort, you will completely relax in luxury!

General

Property ID
31
Price
€360,142 - €503,844
Amount of units
120
Living surface
90m² - 199m²
Expected completion
2020 - 2023
Efficiency
4 to 6%

Features

New

Return

Return
4 to 6%

Wellness

Jacuzzi

Outdoor facilities

Garden

Address

Address
Harderwold Villa Resort
Place
Postal code
Pluvierenweg 9
Country
Province

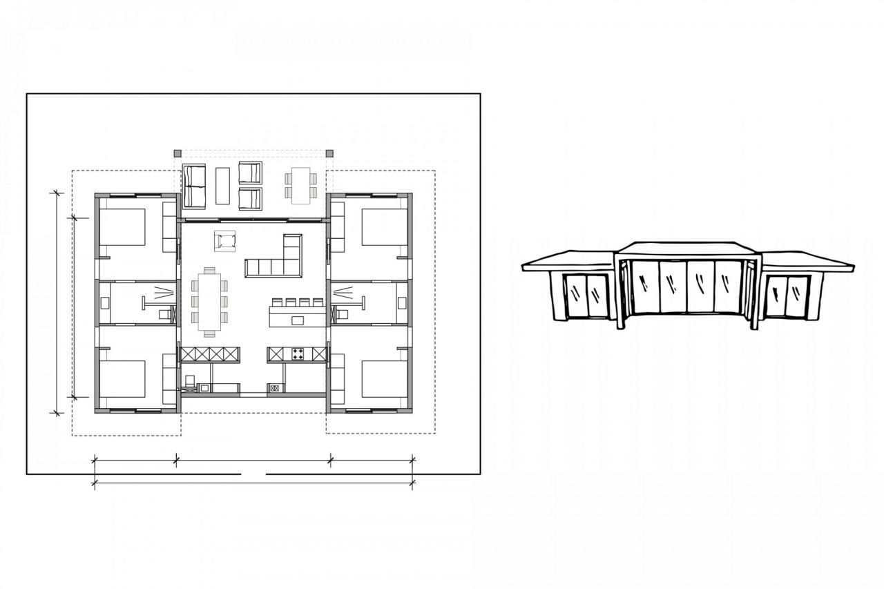
Floorplan

Floorplan
Floorplan
Floorplan

Video's

Skip embedded content of YouTube
Enclosed content of YouTube skipped.
Skip embedded content of YouTube
Enclosed content of YouTube skipped.

Request a Brochure

Want to receive a brochure of this project, fill in your details and the provider will contact you directly!

Map

Offered by:

Vakantiemakelaar