Skip to content
Visit the Expo
| Mecc Maastricht | 10:00 - 17:00
More information

Villa Ficus

Málaga, Spain
€1,295,000
Map
  • Tranquil and peaceful atmosphere
  • Well-designed
  • Reasonable priced

Description

The detached villa in Mijas is located in a popular residential living space in Buenavista Neighborhood a short distance from the A-7 Highway. The villa is situated 4 km from the beach, 4.5 km from Mijas Pueblo City Center, 9 km from Fuengirola City Center, 18 km from Málaga-Costa del Sol Airport, and 35 km from Marbella.

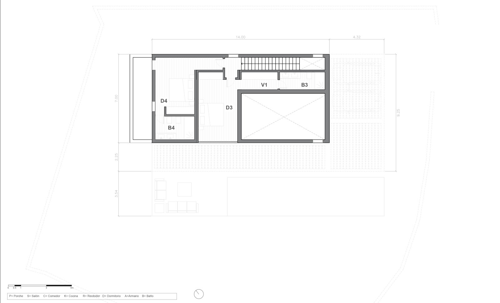
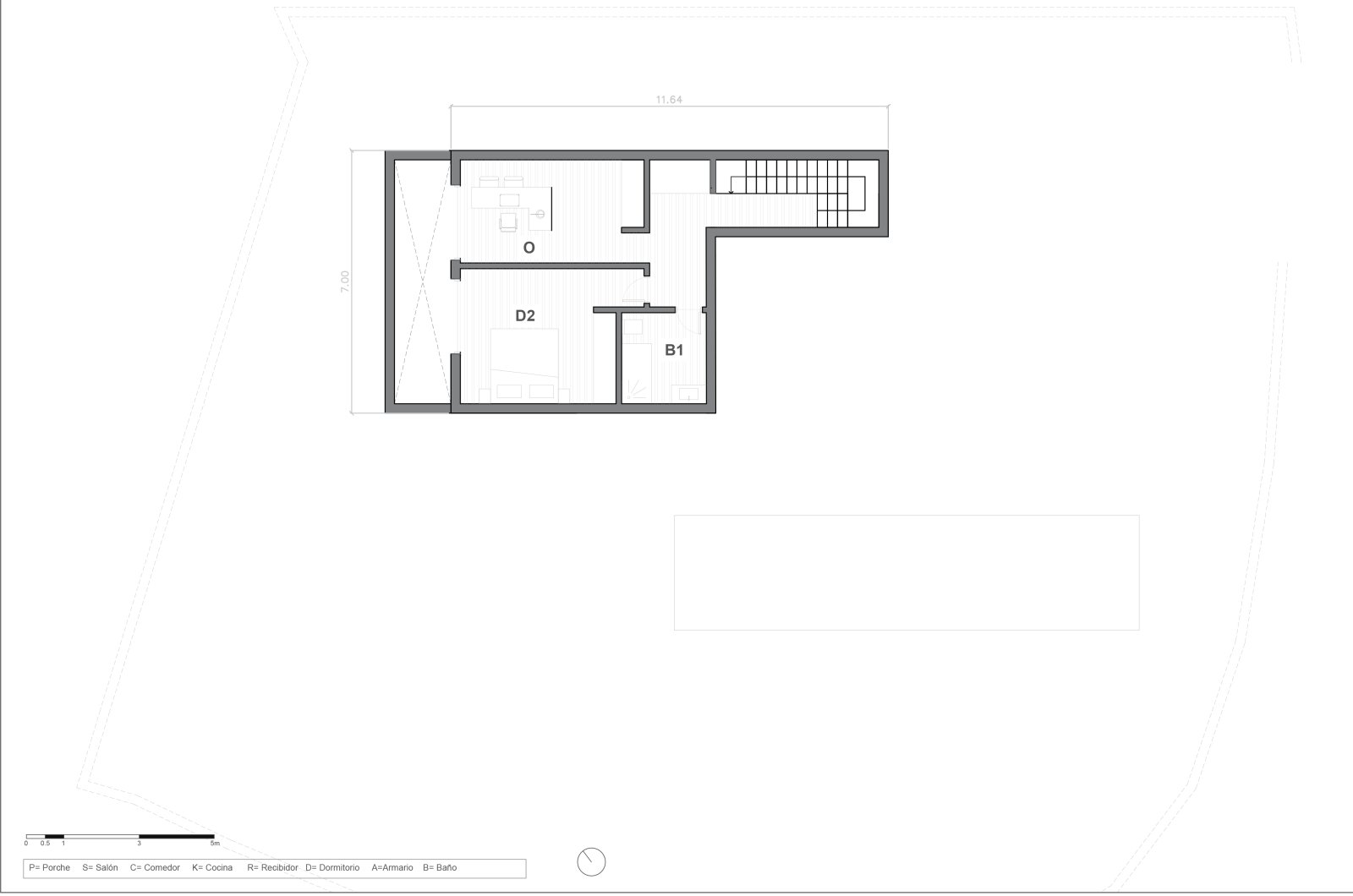
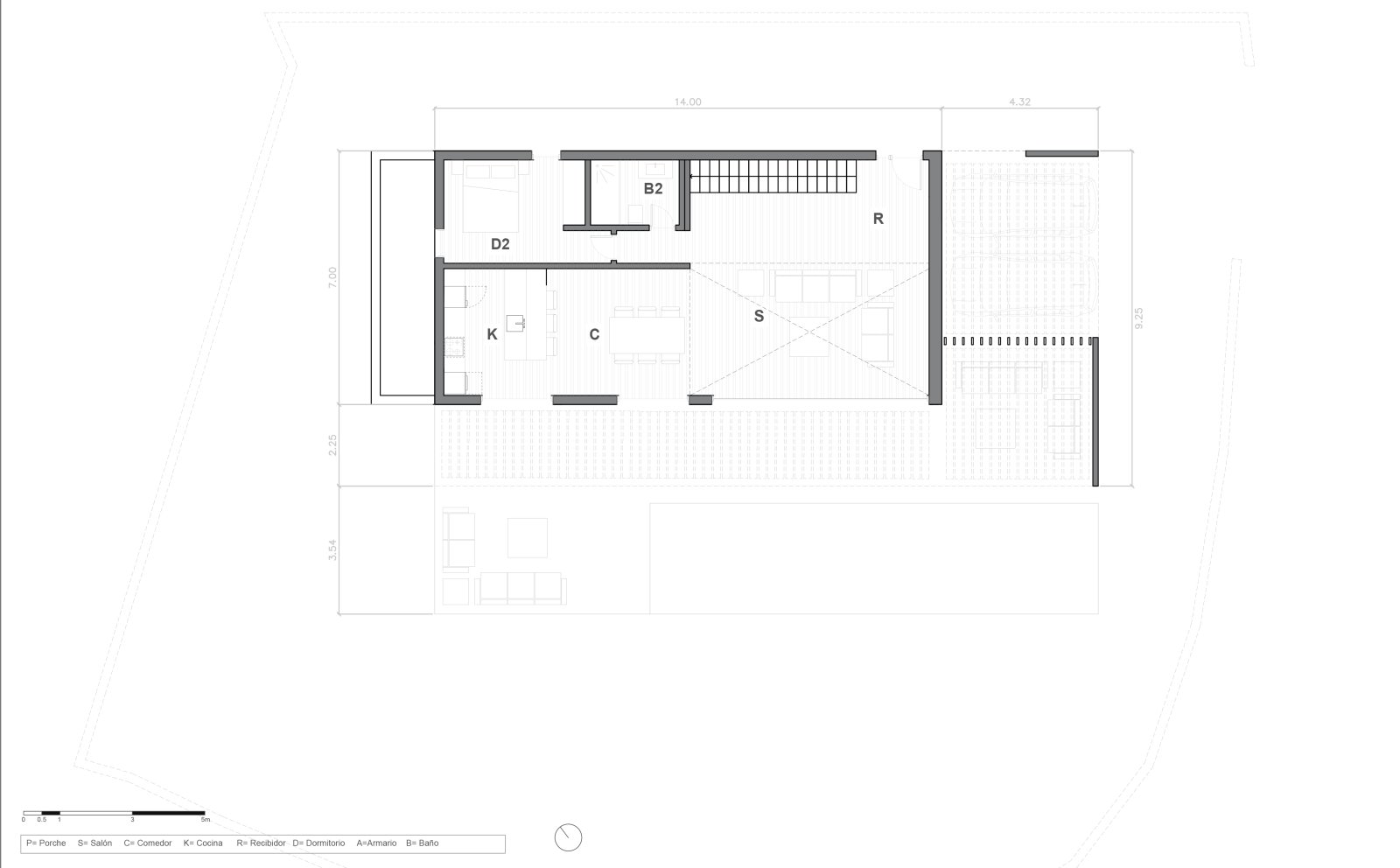
The villa for sale in Mijas, Málaga is situated on 700 m² plots of land that includes an outdoor swimming pool along with a beautiful garden. The project also offers terraces in the villa that offers panoramic mountain views.

The energy-efficient villa is equipped with the highest quality materials including an A/C system that provides hot water both for heating and daily usage. The 3-storey villa features an open-plan concept that meets the interiors with the exteriors. The kitchen of the villa is equipped with high-quality white appliances.

General

Property ID
281
Price
€1,295,000
Amount of units
1
Living surface
355m²
Expected completion
Q4 2025

Features

New

Address

Address
C. Ficus, 27
Place
Postal code
29650
Country
Province

Floorplan

Floorplan
Floorplan
Floorplan

Video's

Skip embedded content of YouTube
Enclosed content of YouTube skipped.

Request a Brochure

Want to receive a brochure of this project, fill in your details and the provider will contact you directly!

Map

Offered by:

TEKCE Real Estate

TEKCE is an international real estate company which has a global presence. We have 20 offices in 5 countries; Spain, Turkey, North Cyprus, Sweden and the United Arab Emirates. Offices are physically operated and owned by TEKCE. We’re 250+ professional real estate agents gathered under the same rules, principles, and enthusiasm worldwide. Our multinational team speaks over 30...