Direct naar inhoud
Bezoek de beurs
| Brabanthallen Den Bosch | 10:00 - 17:00
Meer informatie

Vrijstaande woning in Markelo

Overijssel, Nederland
€ 289.000 k.k. BTW vrij
  • 110 m²
  • 430 m²
  • 3
  • 1
Kaart

Omschrijving

Casa de Madeira is een rustig gelegen luxe 6 persoons bosvilla op eigen grond. Met rondom tuin en met veel privacy.

Deze grenen houten Finse logbouw woning beschikt over 3 slaapkamers, badkamer met sauna en 2 toiletten,

Naast de woning is een houten buiten berging met elektra voorzieningen.

De woning is recentelijk voorzien van warmtepomp (2026) met 200 liter boiler. (woning is all-electric)

De woning is sfeervol ingericht, met o.a. smart tv, uitgebreide keuken met kookplaat, ( combi) oven, koelkast en vaatwasser.

Het geheel is compleet zeer luxe en sfeervol ingericht met uitgebreide keuken inventaris voor 8 personen.

Buiten is deze voorzien van lounge set achter en 6 persoons tuinset met parasol aan de voorzijde.

Het park is uitgerust met heel veel groen en vanaf het park wandelt u rechtstreeks het bos in.

Schilderwerk gehele woning is 2024/2025 uitgevoerd .

De prijs van de woning is compleet inclusief inrichting, inventaris binnen en buiten.

Kortom een prachtige recreatie woning in een schitterende omgeving.

Algemeen

Woning ID
82682
Prijs
€ 289.000 k.k. BTW vrij
Prijstype
k.k. BTW vrij
Status
te koop
Valuta
EUR

Bouw

Bouwjaar
2010
Bouwvorm
Bestaande bouw
Soort woning
Vrijstaande woning
Verwarming
Warmtepomp
Warm water
Boiler

Gebruiksmogelijkheden

Combinatie van verhuur en eigen gebruik
Volledig eigen gebruik

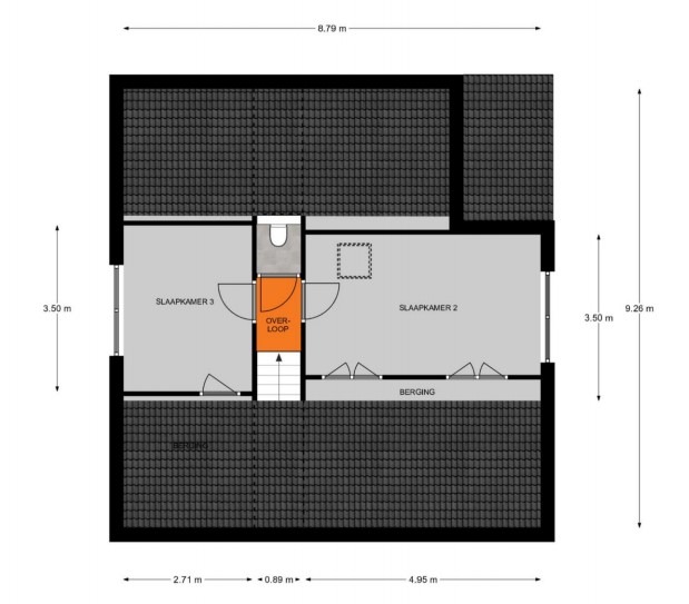
Indeling

Aantal badkamers
1
Aantal slaapkamers
3
Aantal toiletten
2
Perceeloppervlakte
430 m²
Woonoppervlakte
110 m²

Ligging

Aan/nabij bos
Landelijk

Zwembad

Gedeeld zwembad
Zwembad

Wellness

Sauna

Faciliteiten buiten

Parkeerplaats
Terras
Tuin

Faciliteiten binnen

Internet

Duurzaamheid

Dakisolatie
Gasloze woning
HR++ Glas
Vloerisolatie
Warmtepomp

In de buurt

Restaurants
Speeltuin
Tennisbaan

Adres

Adres
Potdijk
Plaats
Postcode
7475 SL
Land
Provincie

Plattegrond

Plattegrond Plattegrond Plattegrond

Informatie aanvragen

Wil je meer informatie over deze woning, vul je gegevens in en de aanbieder neemt direct contact met je op!

Kaart

Aangeboden door:

Deze woning wordt aangeboden door een particuliere verkoper. Vraag informatie aan om in contact te komen met de verkoper.

Vakantiewoningen te koop in Overijssel, Nederland

  • Galerij navigatie

    Vrijstaande woning in Kampen

    Overijssel, Nederland
    € 495.000 k.k. BTW belast
    Kraak House Invest
    • 2
    • 5
    • 108
    • Foto's: 56
  • Galerij navigatie

    Vrijstaande woning in Kampen

    Overijssel, Nederland
    € 88.000 v.o.n. BTW belast
    Kraak House Invest
    • 1
    • 2
    • 49
    • Foto's: 10
  • Galerij navigatie

    Vrijstaande woning in Kampen

    Overijssel, Nederland
    € 375.000 k.k. BTW belast
    Kraak House Invest
    • 2
    • 5
    • 108
    • Foto's: 24