Direct naar inhoud
Bezoek de beurs
| Brabanthallen Den Bosch | 10:00 - 17:00
Meer informatie

Appartement in Torre – Pacheco

Murcia, Spanje
€ 278.000
  • 68 m²
  • 2
  • 2
Kaart

Omschrijving

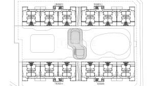
3- en 2-Kamerappartementen met Zwembad in Torre-Pacheco San CayetanoDe appartementen die te koop staan, bevinden zich in San Cayetano, een rustig stadje in Spanje. San Cayetano, dat deel uitmaakt van Torre-Pacheco, onderscheidt zich door zijn rustige en kalme levensstijl, goede bereikbaarheid en snelle toegang tot dagelijkse voorzieningen. Het dorp ligt dicht bij de zee en is dankzij het milde mediterrane klimaat, de natuurlijke landschappen en de goed ontwikkelde infrastructuur een populaire keuze voor zowel permanente bewoning als investering.De appartementen te koop in Torre-Pacheco hebben een gunstige ligging, dicht bij voorzieningen voor dagelijkse behoeften. Winkels, cafés en restaurants liggen op 800 m afstand en het dorpscentrum op 3,5 km. De dichtstbijzijnde golfbaan ligt op 8 km, de stranden op 17 km en de luchthaven op 22 km.De appartementen bevinden zich in een zorgvuldig ontworpen complex. Het project valt op door zijn lage gebouwen en regelmatige architectuur en biedt zijn bewoners voorzieningen zoals een zwembad, een aangelegde tuin, een volledig uitgeruste fitnessruimte, een open parkeerplaats en opslagruimte in de kelder. Het project benadrukt in zijn algemene ontwerp de persoonlijke ruimte en maakt tegelijkertijd zo functioneel mogelijk gebruik van de open ruimtes.Het project biedt appartementen met 2 en 3 slaapkamers. Alle appartementen hebben 2 badkamers, een open keuken en ruime woonkamers die direct uitkomen op terrassen. De appartementen op de bovenste verdieping hebben in plaats van een standaardterras een zonneterras. De badkamers en keukens worden volledig uitgerust opgeleverd. Alle appartementen zijn voorzien van airconditioning. Het interieur van de appartementen is zorgvuldig ontworpen om optimaal gebruik te maken van natuurlijk licht en ruimte. RMU-00301

Algemeen

Woning ID
54276
Prijs
€ 278.000
Status
te koop
Valuta
EUR

Bouw

Bouwvorm
Bestaande bouw
Soort woning
Appartement

Indeling

Aantal badkamers
2
Aantal slaapkamers
2
Woonoppervlakte
68 m²

Adres

Postcode
30592
Land
Provincie
Regio

Informatie aanvragen

Wil je meer informatie over deze woning, vul je gegevens in en de aanbieder neemt direct contact met je op!

Kaart

Aangeboden door:

TEKCE Real Estate

TEKCE is een internationaal vastgoedbedrijf met een wereldwijde aanwezigheid. We hebben twintig kantoren in vijf landen; Spanje, Turkije, Noord-Cyprus, Zweden en de Verenigde Arabische Emiraten. Kantoren worden fysiek beheerd en zijn eigendom van TEKCE. We zijn meer dan 250 professionele makelaars, verenigd onder dezelfde regels, principes en enthousiasme over de hele wereld. Ons...

Vakantiewoningen te koop in Murcia, Spanje