Direct naar inhoud
Bezoek de beurs
| Brabanthallen Den Bosch | 10:00 - 17:00
Meer informatie

Appartement in Meydan

Dubai, Verenigde Arabische Emiraten
€ 525.000
  • 63 m²
  • 1200 m²
  • 1
  • 1
Kaart

Omschrijving

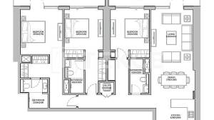
Appartementen met een Comfortabele Levensstijl in een Luxe Complex in Dubai MeydanDeze luxe appartementen bevinden zich in het Sobha Hartland II project in Dubai Meydan. Sobha Hartland II beslaat een landoppervlakte van 750.000 m² en biedt een unieke gemeenschapservaring. Dit woonproject biedt zijn bewoners de rust van groen en blauw, en een uitgebreide leefruimte met een verscheidenheid aan sociale activiteiten. Het project ligt in het hart van de stad, omringd door winkelcentra, zakenwijken en verschillende attracties. Dit 57 verdiepingen tellende woonproject in het complex heeft uitzicht op het water door de open podia en balkons. Het biedt zijn bewoners een moderne en esthetische woonervaring.De appartementen in Dubai Meydan liggen op 25 minuten van Palm Jumeihah, 15 minuten van Down Town en Dubai Mall, 12 minuten van Dubai Internationale Luchthaven, 10 minuten van internationale scholen en 10 minuten van ziekenhuizen en klinieken.Het project omvat een zwembad met kunstmatige golven, een overloopzwembad, een kinderzwembad en een olympisch zwembad, waar je zowel kunt ontspannen als sporten. Er zijn watersportactiviteiten zoals kanoën en roeien. Voor mensen met een handicap zijn er ook speciaal ontworpen cursussen. In het project bieden de volleybal-, basketbal-, voetbal- en tennisbanen energieke activiteiten voor sportievelingen, terwijl supermarkten, foodtrucks en kiosken een praktische oplossing bieden om boodschappen te doen en in de dagelijkse behoeften te voorzien. Het project biedt een rustige omgeving verweven met de natuur, met barbecue- en kinderspeelplaatsen, tuinen en een openluchttheater, terwijl de SPA, het stoombad, de sauna en de jacuzzi volledige ontspanning bieden. Bovendien moedigen voorzieningen zoals een skateboardpark en een huisdierenpark de bewoners aan om plezier te maken en met elkaar om te gaan.Dit exclusieve project wordt omringd door een rustige blauwe vijver en een ongerept strand en valt op door de grote open ruimten en het prachtige uitzicht op de skyline van Dubai. Het project heeft appartementen met 1, 1,5, 2 en 3 slaapkamers. De appartementen bestaan uit een eet- en woonkamer met open keuken, wasruimte, badkamer, balkon en slaapkamers met en-suite badkamers. De appartementen met 1,5 slaapkamer hebben een studeerkamer en een slaapkamer.Stap in een bevoorrecht leven in het Sobha Hartland II complex in Dubai Meydan. Neem contact met ons op om de voordelen van dit prachtige project te ontdekken en vind nu jouw exclusieve appartement. DXB-00057

Algemeen

Woning ID
24726
Prijs
€ 525.000
Status
te koop
Valuta
EUR

Bouw

Bouwvorm
Bestaande bouw
Soort woning
Appartement

Indeling

Aantal badkamers
1
Aantal slaapkamers
1
Perceeloppervlakte
1200 m²
Woonoppervlakte
63 m²

Adres

Plaats
Provincie

Informatie aanvragen

Wil je meer informatie over deze woning, vul je gegevens in en de aanbieder neemt direct contact met je op!

Kaart

Aangeboden door:

TEKCE Real Estate

TEKCE is een internationaal vastgoedbedrijf met een wereldwijde aanwezigheid. We hebben twintig kantoren in vijf landen; Spanje, Turkije, Noord-Cyprus, Zweden en de Verenigde Arabische Emiraten. Kantoren worden fysiek beheerd en zijn eigendom van TEKCE. We zijn meer dan 250 professionele makelaars, verenigd onder dezelfde regels, principes en enthousiasme over de hele wereld. Ons...

Vakantiewoningen te koop in Dubai, Verenigde Arabische Emiraten

  • Galerij navigatie

    Appartement in Al Jaddaf

    Dubai, Verenigde Arabische Emiraten
    € 480.000
    TEKCE Real Estate
    • 3
    • 2
    • 117
    • Foto's: 17
  • Galerij navigatie

    Appartement in Al Jaddaf

    Dubai, Verenigde Arabische Emiraten
    € 685.000
    TEKCE Real Estate
    • 4
    • 3
    • 148
    • Foto's: 13
  • Galerij navigatie

    Appartement in Al Jaddaf

    Dubai, Verenigde Arabische Emiraten
    € 468.000
    TEKCE Real Estate
    • 3
    • 2
    • 119
    • Foto's: 13