Skip to content
Visit the Expo
| Jaarbeurs Utrecht Utrecht | 10:00 - 17:00
More information

Villa in Les Forges

Aquitaine, France
€197,500 buyer fees
  • 104 m²
  • 840 m²
  • 3
  • 2
Map

Description

Dop Makelaars offers: Le Bourg Est 17 in Les Forges.

In a beautiful location on the small-scale Domaine Le Bourg Est, we offer villa 17 for sale. This detached villa, built in 2002 with a floor area of ??90m², is situated on a beautiful plot of approximately 840m². The house has been finished to a high standard, featuring a fully equipped kitchen with modern appliances, two well-maintained bathrooms, and three spacious bedrooms.

The cozy living room with fireplace is a perfect place to relax with family and friends. The house is conveniently situated on the property, offering a spacious, private backyard. Here you’ll find the private swimming pool, built in 2023 and equipped with a heat pump. The patio has been recently renovated. There’s a shed in the backyard for storing garden tools and cushions. The attractive shutters keep the house wonderfully cool.

The villa is centrally located in the Poitou-Charentes region, not far from the charming city of Poitiers. Various villages, towns, attractions, and excellent restaurants are located in the immediate vicinity. The challenging golf course nearby, where you can play golf year-round, is naturally one of the highlights.

The property is currently rented, but there is no rental obligation. This offers various opportunities to generate a return. Our agents can advise you on this.

If you are interested in this beautiful property, we invite you to view the property on location in France. Viewings can be arranged daily by appointment.

Our agents can also tell you a lot about the location, the property, the amenities in the area, maintenance, management, rental options, and financing options.

You are very welcome!

Purchase price: €197,500 (costs for buyer) (inventory negotiable)

General

Property ID
39538
Price
€197,500 buyer fees
Price type
k.k.
Status
te koop
Valuta
EUR

Construction

Construction type
Existing building
Home type
Villa
Year of construction
2002

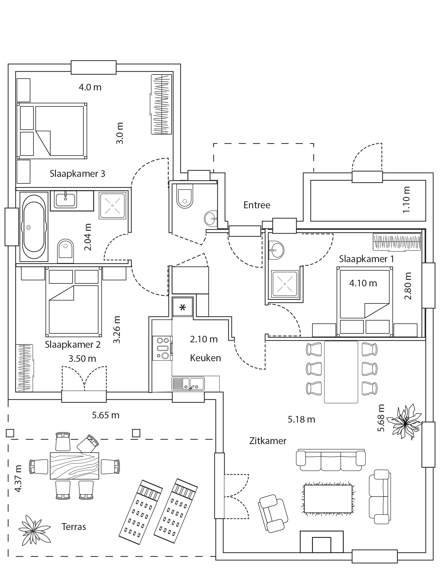
Layout

Living surface
104 m²
No. bathrooms
2
No. bedrooms
3
No. toilets
3
Plot size
840 m²

Outdoor facilities

Garden
Terrace

Address

Address
Le Bourg Est 17
Place
Country
Province

Floorplan

Floorplan
Floorplan
Floorplan

Requesting Information

Want more information about this property, enter your details and the provider will contact you immediately!

Map

Offered by:

Dop Makelaars

Welcome to Dop Makelaars – Unique Property Listings in the Netherlands, France, and Germany

Since 1998, Dop Makelaars has been active in the Netherlands, specializing in the sale of new-build projects, clearance projects, and private residences. This includes permanent homes, vacation properties, and investment opportunities.

Our expertise lies particularly in project-based...

Holiday homes for sale in Aquitaine, France

  • Gallery navigation

    Villa in Cuzorn

    Aquitaine, France
    €212,000
    Maisonssud
    • 164
    • 1
    • 5
    • Photos: 19
  • Gallery navigation

    Villa in Fenouillet

    Aquitaine, France
    €985,000 buyer fees
    Dop Makelaars
    • 434
    • 4
    • 5
    • Photos: 68
  • Gallery navigation

    Villa in Prats De Mollo

    Aquitaine, France
    €1,249,000 buyer fees
    Dop Makelaars
    • 495
    • 7
    • 10
    • Photos: 92